Sök bostad
Favoriter
Bevakningar
Köpskolan
Stories
Bostadsutvecklare
Logga in
Skapa konto
Intresseanmälan
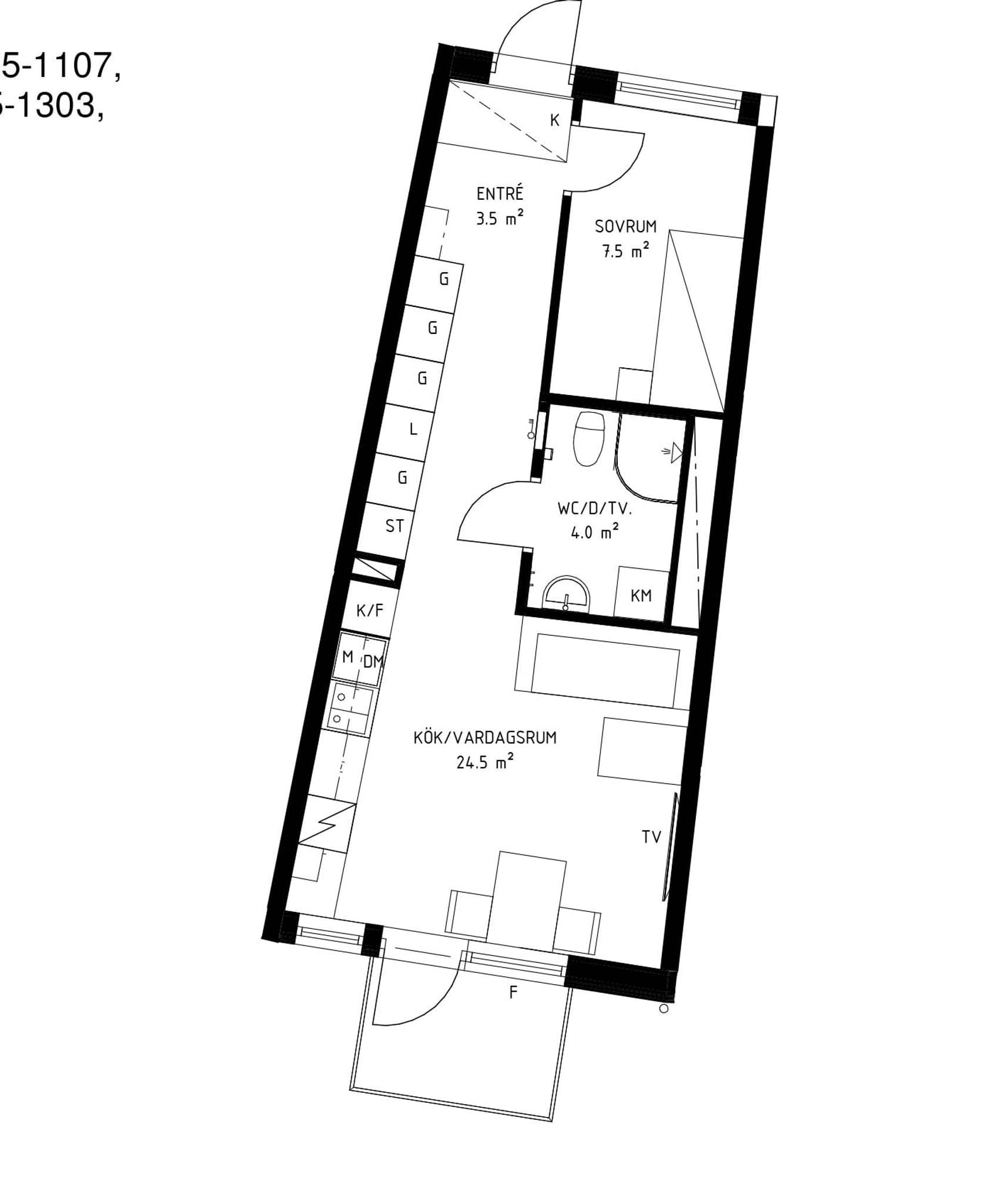
Lägenhet Seniorboende 15-1207
Öresjö Ängar • Magnolia Bostad
Tosseryd, Borås
Inflyttning
-
Boendeform
Hyresrätt
Status
Uthyrning pågår
Antal RoK
2
Boyta
40.49
Hyra
5 931 kr/mån
Till bostadsprojektet
Om bostaden
Ritning
Karta
Favorit?
Om bostaden
Visning
Ritning
Dela
Intresseanmälan
Visning
Datum
Tid
Beskrivning
Dokument och länkar
Hyra lägenhet av Magnolia
Läs mer om Öresjö Ängar
Broschyr, Öresjö Ängar
Planlösningar Hus 13 och 14
Hyresrabatt
Uthyrningspolicy
Planritningar
Frågor och svar
I närheten finns
Kontakt
Intresseanmälan
Läs mer hos
Sök bostad
Favoriter
Bevakningar
Köpskolan
Stories
Om oss
Bostadsutvecklare
Annonsering
Partners
Cookies
Integritet & GDPR
Skapa konto
Logga in
Vill du ha nyhetsbrev från oss?
Klicka här
!